Immeuble commercial À vendre

ch. • sdb • 218 • 167
7033 Cuesmes
À vendre
149 000 €
Facebook
WhatsApp

    Maison de commerce idéalement située

    Située en face de la place de Cuesmes, cette maison de commerce bénéficie d’une situation idéale avec du parking à proximité.
    Actuellement louée 1400 € par mois à un salon de coiffure et d’esthétique, elle offre un potentiel locatif important.
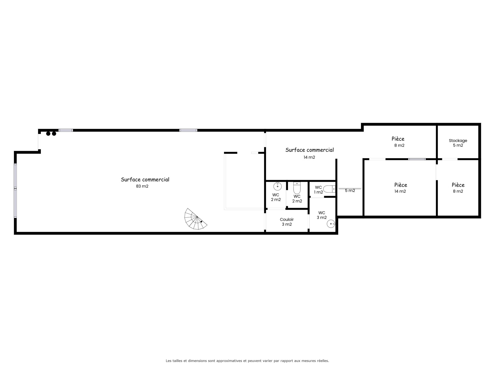
    Rez-de-chaussée (83 m²) : vaste espace commercial lumineux, plusieurs pièces fonctionnelles et deux WC séparés.
    Étage (70 m²) : appartement aménagé (non louable indépendamment).
    Parfait pour un stockage supplémentaire ou un espace de réception.
    Autres atouts : cave et espace de stockage supplémentaire.
    Possibilité de reconversion (anciennement restaurant et bar).
    Prix : 149 000 €

    Vous souhaitez visiter ce bien ?

    Les horaires

    Du lundi au vendredi9h00 à 12h30 
     14h00 à 17h00
    WeekendSur rendez-vous

    Nos coordonnées

    L'agence BIERLAIRE

    Agréé I.P.I Agent immobilier intermédiaire sous le numéro : 500.728 Belgique

    RC professionnelle et cautionnement via AXA Belgium SA – police n° 730.390.160

    Données générales

    • Prix 149 000 €
    • Référence 6775528
    • Ville Cuesmes
    • Catégorie Commerce
    • Status de la transaction À vendre
    • Etat du batiment À rafraîchir
    • Date de construction 80
    • Revenu cadastral 907 €

    Configurations

    • Jardin Non
    • Parking Non
    • Cave Oui
    • Superficie totale 218
    • Superficie terrain 167

    Données énergétiques

    • Type de chauffage gaz (chau. centr.)

    Localisation

    64 Place de Cuesmes 7033 Cuesmes

    Partager le bien
    Facebook
    WhatsApp

    Vous souhaitez visiter ce bien ?

    Les horaires

    Du lundi au vendredi9h00 à 12h30 
     14h00 à 17h00
    WeekendSur rendez-vous

    Nos coordonnées

    L'agence BIERLAIRE

    Agréé I.P.I Agent immobilier intermédiaire sous le numéro : 500.728 Belgique

    RC professionnelle et cautionnement via AXA Belgium SA – police n° 730.390.160

    7125510_71758808.jpg

    Demandez une visite pour ce bien