Commerce individuel À vendre

ch. • sdb • 142 • 0
7000 Mons
À vendre
199 000 €
Facebook
WhatsApp

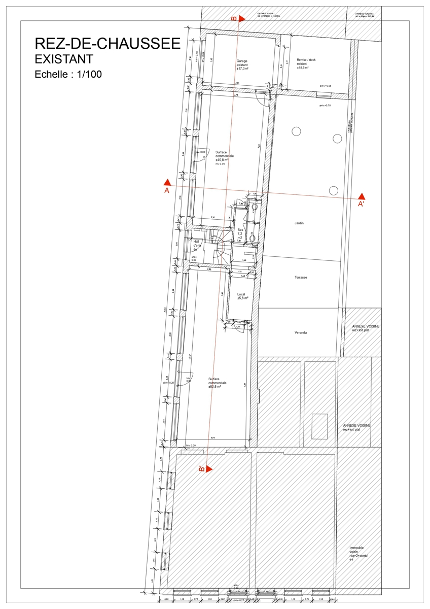
    Surface commerciale polyvalente avec garage et stockage

    Rez-de-chaussée commercial proposant deux surfaces distinctes mais communicantes et offrant une grande flexibilité d’exploitation.

    🛍️ Surface 1 : 40,8 m² avec un espace privatif de 5,8 m² (bureau, réserve, cabine…)
    🛍️ Surface 2 : 52,5 m²
    🔗 Sas de liaison : 7,2 m² assurant une circulation fluide entre les espaces

    Le bien dispose également de deux W.C. séparés ainsi que d’une kitchenette.

    Espaces supplémentaires:
    🚗 Garage privatif de 17,3 m²
    📦 Espace de stockage de 18,5 m²

    Les points forts :
    ✅ Situation idéale à proximité immédiate du centre de Mons, dans un quartier dynamique
    ✅ Bonne visibilité commerciale
    ✅ Accès aisé via grands axes et transports en commun
    ✅ Espaces polyvalents : commerce, bureau, profession libérale ou investissement
    ✅ Stationnement aisé à proximité
    ✅ Configuration modulable : exploitation conjointe ou séparée

    Grâce à sa configuration et à sa situation au rez-de-chaussée, ce bien représente une opportunité idéale pour l’implantation d’un commerce, d’un bureau ou de toute autre activité nécessitant visibilité et accessibilité.

    L’immeuble dans lequel se trouve le bien est actuellement en cours de division, et les statuts de la copropriété doivent encore nous être transmis.

    Prix indicatif : 199.000 €

    📍Rue des Arquebusiers 45/49, 7000 Mons

    PEB : non concerné

    📞 Intéressé(e) ? Contactez-nous au 065/31.21.21 pour planifier une visite!
    Informations non contractuelles n’engageant pas la responsabilité de l’agent immobilier.

    Vous souhaitez visiter ce bien ?

    Les horaires

    Du lundi au vendredi9h00 à 12h30 
     14h00 à 17h00
    WeekendSur rendez-vous

    Nos coordonnées

    L'agence BIERLAIRE

    Agréé I.P.I Agent immobilier intermédiaire sous le numéro : 500.728 Belgique

    RC professionnelle et cautionnement via AXA Belgium SA – police n° 730.390.160

    Données générales

    • Prix 199 000 €
    • Ville Mons
    • Catégorie Commerce
    • Status de la transaction À vendre
    • Etat du batiment Bon état
    • Date de construction 1989
    • Revenu cadastral 845 €

    Configurations

    • Jardin Non
    • Parking Non
    • Cave Non
    • Superficie totale 142

    Données énergétiques

    Localisation

    45/49 Rue des Arquebusiers 7000 Mons

    Partager le bien
    Facebook
    WhatsApp

    Vous souhaitez visiter ce bien ?

    Les horaires

    Du lundi au vendredi9h00 à 12h30 
     14h00 à 17h00
    WeekendSur rendez-vous

    Nos coordonnées

    L'agence BIERLAIRE

    Agréé I.P.I Agent immobilier intermédiaire sous le numéro : 500.728 Belgique

    RC professionnelle et cautionnement via AXA Belgium SA – police n° 730.390.160

    7321852_75320687.jpg

    Demandez une visite pour ce bien