Appartement À vendre

2 ch. • 1 sdb • 88 • 0
7000 Mons
À vendre
199 000 €
Facebook
WhatsApp

    Appartement lumineux 2 chambres au cœur de Mons

    Idéalement situé à deux pas du centre de Mons, cet appartement lumineux vous séduira par ses volumes généreux et sa disposition fonctionnelle.
    Profitez d’un cadre de vie pratique, proche des commerces, transports, écoles et axes principaux, tout en bénéficiant du calme d’un quartier recherché.

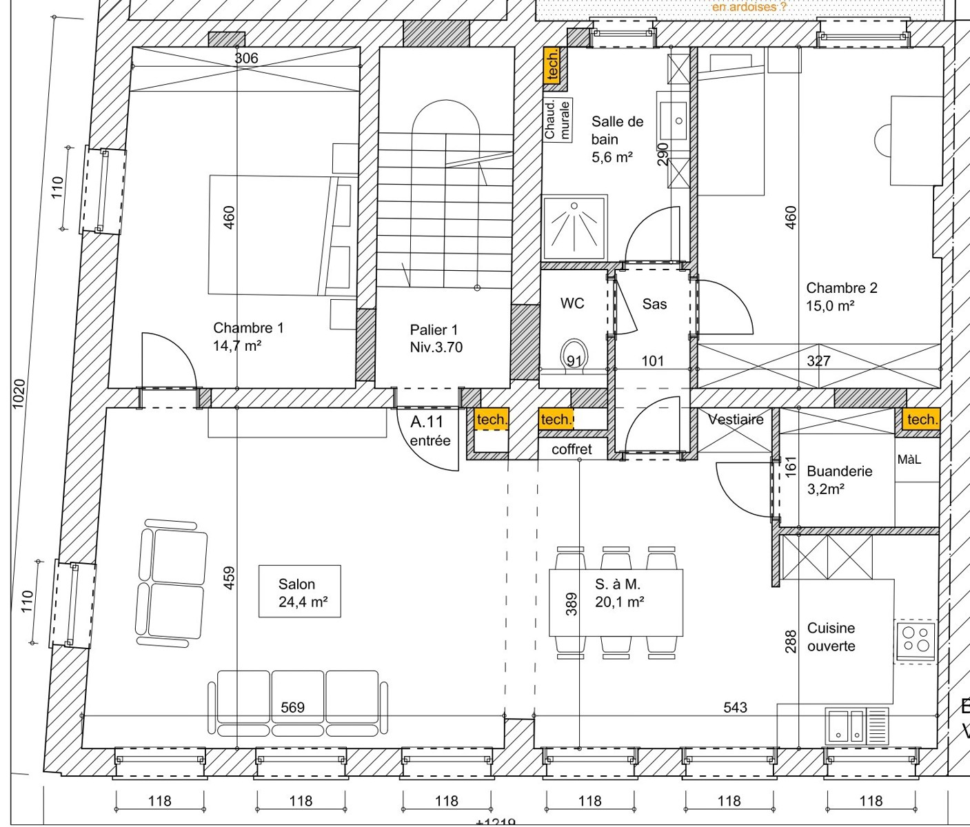
    Le bien se compose de deux belles chambres de 14,7 m² et 15 m², parfaites pour un couple, une petite famille ou un espace bureau.
    Le séjour de 24,4 m², baigné de lumière, invite à la détente, tandis que la salle à manger indépendante de 20,1 m² offre un espace convivial pour recevoir.

    Côté pratique, vous disposez d’une cuisine attenante, d’une buanderie de 3,2 m², d’un WC séparé ainsi que d’une salle de bain de 5,6 m².

    L’appartement dispose également de sa propre cave privative.

    Cet appartement combine confort, espace et emplacement stratégique, faisant de lui une opportunité idéale tant pour un premier achat que pour un investissement.

    👉 Une visite s’impose pour apprécier pleinement son potentiel !

    L’immeuble dans lequel se trouve le bien est actuellement en cours de division, et les statuts de la copropriété doivent encore nous être transmis.

    Prix indicatif : 199.000 €

    📍Rue des Arquebusiers 51 1-1, 7000 Mons

    PEB B : 20200826013077

    📞 Intéressé(e) ? Contactez-nous au 065/31.21.21 pour planifier une visite!
    Informations non contractuelles n’engageant pas la responsabilité de l’agent immobilier.

    Vous souhaitez visiter ce bien ?

    Les horaires

    Du lundi au vendredi9h00 à 12h30 
     14h00 à 17h00
    WeekendSur rendez-vous

    Nos coordonnées

    L'agence BIERLAIRE

    Agréé I.P.I Agent immobilier intermédiaire sous le numéro : 500.728 Belgique

    RC professionnelle et cautionnement via AXA Belgium SA – police n° 730.390.160

    Données générales

    • Prix 199 000 €
    • Ville Mons
    • Catégorie Appartement
    • Status de la transaction À vendre
    • Etat du batiment Excellent état
    • Revenu cadastral 0 €

    Configurations

    • Nombre de chambres 2
    • Nombre de salles de bains 1
    • Jardin Non
    • Parking Non
    • Cave Oui
    • Superficie totale 88
    • Superficie séjour 24,40
    • Superficie chambre 1 15
    • Superficie chambre 2 14,70

    Données énergétiques

    • Classe énergétique PEB
    • PEB No 20200826013077
    • E spec 167 kWh/m²/an
    • E totale 17974 kWh/an
    • Emission de CO2 32 Kg/CO2/an
    • Type de chauffage gaz (chau. centr.)

    Localisation

    51 Rue des Arquebusiers 7000 Mons

    Partager le bien
    Facebook
    WhatsApp

    Vous souhaitez visiter ce bien ?

    Les horaires

    Du lundi au vendredi9h00 à 12h30 
     14h00 à 17h00
    WeekendSur rendez-vous

    Nos coordonnées

    L'agence BIERLAIRE

    Agréé I.P.I Agent immobilier intermédiaire sous le numéro : 500.728 Belgique

    RC professionnelle et cautionnement via AXA Belgium SA – police n° 730.390.160

    7311926_75300880.jpg

    Demandez une visite pour ce bien