Maison À vendre

6 ch. • 3 sdb • 340 • 422
7000 Mons
À vendre
325 000 €
Facebook
WhatsApp

    Situation exceptionnelle pour projet immobilier

    Maison d’habitation entièrement à rénover dans le centre de Mons, offrant un fort potentiel de transformation en plusieurs logements, idéal pour un projet d’investissement ou de division.

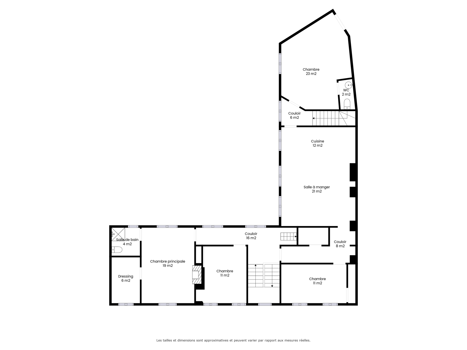
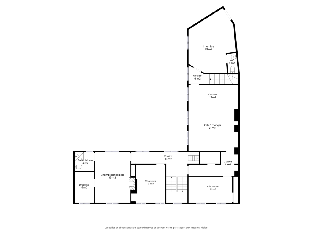
    A titre indicatif: Permis d’urbanisme octroyé en 2018 pour le projet suivant :

    – L’aménagement d’un logement situé au rez-de-chaussée et accessible via la rue des Groseillers, composé de deux chambres de 9,5 m² et 13,5 m², d’une salle à manger de 15,98 m², d’une cuisine de 3,23 m², d’un salon de 18,86 m² et d’une salle de bain.
    – L’aménagement d’un second logement au rez-de-chaussée accessible via la rue des
    Arbalestriers composé d’un living avec coin cuisine de 24,51 m² et d’une chambre au
    premier étage.
    – L’aménagement de deux logements au premier étage; Un premier logement constitué d’une chambre de 11,90 m²,
    d’un séjour de 16,90 m², d’une cuisine de 6,05 m² et d’une salle de douche.
    – Un second logement constitué d’une chambre de 10,81 m², d’un séjour de 23m² avec coin
    cuisine et d’une salle de bain.

    Prix indicatif: 325.000 €

    Contactez-nous dès maintenant au 065/31.21.21 pour plus de renseignements ou organiser une visite !

    Informations non contractuelles n’engageant pas la responsabilité de l’agent immobilier.

    Vous souhaitez visiter ce bien ?

    Les horaires

    Du lundi au vendredi9h00 à 12h30 
     14h00 à 17h00
    WeekendSur rendez-vous

    Nos coordonnées

    L'agence BIERLAIRE

    Agréé I.P.I Agent immobilier intermédiaire sous le numéro : 500.728 Belgique

    RC professionnelle et cautionnement via AXA Belgium SA – police n° 730.390.160

    Données générales

    • Prix 325 000 €
    • Référence 6701995
    • Ville Mons
    • Catégorie Maison
    • Status de la transaction À vendre
    • Etat du batiment À rénover
    • Revenu cadastral 0 €

    Configurations

    • Nombre de chambres 6
    • Nombre de salles de bains 3
    • Jardin Oui
    • Parking Non
    • Cave Oui
    • Superficie totale 340
    • Superficie terrain 422

    Données énergétiques

    • Classe énergétique PEB
    • PEB No 20201008004855
    • E spec 480 kWh/m²/an
    • E totale 192190 kWh/an
    • Type de chauffage gaz (chau. centr.)

    Localisation

    42 Rue des Groseilliers 7000 Mons

    Partager le bien
    Facebook
    WhatsApp

    Vous souhaitez visiter ce bien ?

    Les horaires

    Du lundi au vendredi9h00 à 12h30 
     14h00 à 17h00
    WeekendSur rendez-vous

    Nos coordonnées

    L'agence BIERLAIRE

    Agréé I.P.I Agent immobilier intermédiaire sous le numéro : 500.728 Belgique

    RC professionnelle et cautionnement via AXA Belgium SA – police n° 730.390.160

    7043438_70592180.jpg

    Demandez une visite pour ce bien